3.843,11 €*
% 6.421,24 €* (40.15% gespart)Lieferzeit: 2 - 5 Werktage
Produktinformationen "Vaillant Paket 1.623 ecoTEC pure VCW 206/7-2, multiMATIC VRC 700, L / LL 0010029589"
Vaillant Paket 1.623 ecoTEC pure VCW 206/7-2, multiMATIC VRC 700, L / LL
Einleitung
Das Vaillant Paket 1.623 kombiniert das gasbetriebene Combigerät ecoTEC pure VCW 206/7-2 mit der witterungsgeführten Regelung multiMATIC VRC 700 und passendem Anschlusszubehör. Dieses Systempaket bietet eine platzsparende Wandheizung mit integrierter Warmwasserbereitung nach dem Durchlaufprinzip und richtet sich an Modernisierer, die eine effiziente und zuverlässige Vaillant-Brennwertlösung suchen.
Vorteile und Besonderheiten
- Hoher Normnutzungsgrad von 98 % (Hs) / 109 % (Hi) und hohe Wirkungsgrade bei Teillast sowie Warmwasserbetrieb für reduzierte Energieverluste.
- Breiter Modulationsbereich von 35 % bis 100 % für bedarfsgerechte Leistung und geringeren Brennstoffverbrauch.
- Aqua-Comfort-System plus und Aqua-Power-Plus für spürbar mehr Warmwasserleistung und komfortablen Warmwasserzugriff.
- Multi-Sensorik-System und automatische Teillastanpassung für eine optimierte Verbrennung und stabile Betriebsparameter.
- Flexible Betriebsarten: raumluftabhängig oder -unabhängig, sowie Kompatibilität mit Erdgas E/LL, Bio-Erdgas und Flüssiggas.
- Intuitive Bedienung über das beleuchtete DIA-Klartextdisplay der multiMATIC VRC 700 und eBUS-Schnittstelle zur Einbindung in Gebäudeleittechnik.
- Robuste Bauweise mit integralem Kondensationswärmetauscher und sekundärem Edelstahl-Wärmetauscher für lange Lebensdauer.
Technische Details
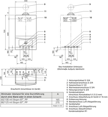
Das Paket enthält das Modell VCW 206/7-2 mit Nennwärmeleistungen bei 50/30 °C von 7,0 bis 20,1 kW sowie bei 80/60 °C von 6,4 bis 18,5 kW. Die maximale Leistung im Warmwasserbetrieb liegt bei 24,3 kW; der Wirkungsgrad bei Warmwasserbereitung beträgt 99,5 %. Weitere Ausstattungsmerkmale sind Hocheffizienz-Pumpe, Wasserdrucksensor, Volumenstromsensor, 8 Liter Ausdehnungsgefäß (ADG) und SI-Ventil 1/2. Die Anschlüsse sind R 3/4 für Vor-/Rücklauf sowie Kalt-/Warmwasser und R 1/2 für den Gasanschluss; Luft-/Abgasanschluss DN 60/100 mm. Abmessungen: 720 mm Höhe, 440 mm Breite, 337 mm Tiefe; Gewicht ca. 33,5 kg. Das Gerät erfüllt CE-Kennzeichnungen und weist die jahreszeitbedingte Raumheizungs- sowie Warmwasserbereitungs-Energieeffizienzklasse A auf.
Anwendung und Einsatzbereiche
Das Paket eignet sich für Ein- und Mehrfamilienhäuser sowie Wohnungen mit mittlerem bis erhöhtem Warmwasserbedarf und ist ideal bei Modernisierungen, bei denen kompakte Wandgeräte benötigt werden. Durch die Möglichkeit der Mehrfachbelegung mit bis zu fünf Geräten (bei Erdgas E und LL) ist das System auch in größeren Objekten skalierbar. Typische Einsatzbereiche sind zentrale Heiz- und Warmwasserbereitungen in Bestandsbauten, Ersatzinstallationen von veralteten Heizwertkesseln sowie Kombinationen mit moderner Gebäudetechnik dank der multiMATIC-Steuerung.
Lieferumfang
Das Paket umfasst das Vaillant ecoTEC pure VCW 206/7-2 (Gas-Kombitherme), die witterungsgeführte Regelung multiMATIC VRC 700/6 sowie das spezifische Anschlusszubehör für ecoTEC pure. Die Bestellnummer lautet 0010029589; im Paket sind die Artikelnummern 0010030695 (VCW 206/7-2), 0020266797 (VRC 700/6) und 0010030694 (Anschlusszubehör) enthalten.
Fazit
Das Vaillant Paket 1.623 ecoTEC pure VCW 206/7-2 mit multiMATIC VRC 700 ist eine wirtschaftliche, platzsparende und technisch durchdachte Brennwertlösung von Vaillant. Es bietet hohe Wirkungsgrade, komfortable Warmwasserleistungen und vielseitige Einsatzmöglichkeiten bei Modernisierungen. Empfehlenswert für Kunden, die eine zuverlässige Vaillant-Komplettlösung mit bewährter Brennwerttechnik und moderner Regelungstechnik suchen.
Technische Daten
| ecoTEC pure | Einheit | VC 146/7-2 | VCW 206/7-2 |
| Heizleistung bei 50 / 30 °C Erdgas E, Erdgas LL (Min. - Max.) | kW | 6,9 - 14,8 | 7,0 - 20,1 |
| Heizleistung bei 80 / 60 °C Erdgas E, Erdgas LL (Min. - Max.) | kW | 6,2 - 13,4 | 6,4 - 18,5 |
| Heizleistung bei Warmwasserbetrieb Erdgas E, Erdgas LL (Max.) | kW | 18,2 | 24,3 |
| Wirkungsgrad bei 30 % gem. EN 15502 Erdgas E, Erdgas LL, Flüssiggas | % | 105 | 109 |
| Wirkungsgrad bei Warmwasserbetrieb Erdgas E, Erdgas LL | % | 99,5 | |
| Warmwasser-Dauerleistung bei ^t 30 K | l/min | - | 11,5 |
| Temperatur Warmwasser (Min. - Max.) | °C | - | 35 - 65 |
| Elektr. Leistungsaufnahme bei 30% | W | 34 | 59 |
| Elektr. Leistungsaufnahme (Max.) | W | 36 | 74 |
| Elektr. Leistungsaufnahme im standby | W | 1,6 | |
| Beinhaltete Bauteile bei elektr. Leistung | Pumpe | ||
| Inhalt heizungsseitig | l | 6,9 | |
| Max. Betriebsdruck heizungsseitig | bar | 3 | |
| Max. Vorlauftemperatur | °C | 85 | |
| Anschlusswert bei Erdgas E * ** | m³/h | 1,46 | 2,6 |
| Anschlusswert bei Erdgas LL * ** | m³/h | 1,95 | 2,6 |
| Anschlusswert bei Flüssiggas * ** | kg/h | 1,43 | 1,9 |
| Kondenswassermenge bei 50/30°C | l/h | 1,7 | 2,2 |
| Pumpen-Volumenstrom bei 20K (Restförderhöhe) | l/h (mbar) | 577 (250) | 797 (250) |
| Ausdehnungsgefäßinhalt | l | 8 | |
| Vordruck | bar | 0,75 | |
| Spannungsversorgung | 230V / 50Hz | ||
| Produktmaße (Höhe / Breite / Tiefe) | mm | 720 / 440 / 337 | |
| Gewicht Produkt | kg | 30 | 30,8 |
| Anschluss Heizung (VL und RL) | G 3/4 | ||
| Anschluss Speicher (VL und RL) | G 3/4 | - | |
| Anschluss Kaltwasser, Warmwasser | - | G 3/4 | |
| Anschluss Gas | G 1/2 | ||
| Anschluss Luft, Abgas | 60 / 100 | ||
| CE | CE-0063 CR 3775 | ||
| Kategorie | II2ELL3P | ||
| * Dieser Wert dient zur Dimensionierung der Anschlussleitung ** Bezogen auf 15°C und 1013 mbar |
Sicherheitshinweise
WARNUNG: Zur Vermeidung von Körper- und Gesundheitsschäden sind die Montage, Erstinbetriebnahme, Inspektion, Wartung und Instandsetzung von autorisierten Fachkräften (Heizungsfachbetrieb / Vertragsinstallationsunternehmen) vorzunehmen! Gerne vermitteln wir Ihnen einen Fachbetrieb für Installation & Montage von Öl- und Gasheizungen - Fragen Sie uns!
Die Installation von Elektrogeräten mit Drei-Phasen-Wechselstrom-Anschluss (3~/400V), "nicht-steckerfertigen Geräten" ist von einem eingetragenen Fachbetrieb vorzunehmen. Bei Erstinstallation eines Geräts mit einer Nennleistung von mehr als 12kW ist zudem die Zustimmung des Netzbetreibers einzuholen.
Bestimmungsgemäße Verwendung: Bitte beachten Sie bei Installation und Montage beiliegende Installations-, Betriebs- und Wartungsanleitungen sowie Produkt-/Systemzulassungen aller Anlagenkomponenten. Bei Wärmeerzeugern ist zum Beispiel regelmäßig der Fall, dass allein für diese Heizung zugelassene Abgastechnik zur Verwendung gelangen darf. Zur bestimmungsgemäßen Verwendung gehört gleichsam die Einhaltung der ebenfalls in o.g. Unterlagen enthaltenen Inspektions- und Wartungsbedingungen. Bitte kontaktieren Sie unser Fachberater-Team bei offenen Fragen rund um Kompatibilität und Zulassung!
Produktdetails
| Hersteller: | Vaillant |
| Bezeichnung: | Systempaket 1.623 mit ecoTEC pure VCW 206/7-2 Gas-Combi-Wandheizgerät |
| Artikelnummer: | 0010029589 |
| Gasart: | Erdgas L/LL (andere Gasvarianten ebenfalls im Shop verfügbar) |
| Nennwärmeleistung bei 50/30°C: | 7,0 - 20,1 kW |
| Nennwärmeleistung bei 80/60°C: | 6,4 - 18,5 kW |
| Heizleistung bei Warmwasserbetrieb: | 24,3 kW |
| Abgasanschluss: | DN60/100 |
| CE-Kennzeichen: | CE-0063CR3775 |
Hersteller
Vaillant Deutschland GmbH & Co. KG
Berghauser Str. 40
42859 Remscheid
https://www.vaillant.de/heizung/
FAQ: Paket 1.623 ecoTEC pure VCW 206/7-2
Für welche Gasarten ist das Paket geeignet?
Das Paket ist für Betrieb mit Erdgas E, Erdgas LL, Bio-Erdgas und Flüssiggas ausgelegt. Bei der Mehrfachbelegung von bis zu fünf Geräten gilt die Nutzung mit Erdgas E und LL.
Welche Leistungen liefert die VCW 206/7-2 im Heiz- und Warmwasserbetrieb?
Die Nennwärmeleistung beträgt bei 50/30 °C 7,0–20,1 kW und bei 80/60 °C 6,4–18,5 kW. Die Leistung im Warmwasserbetrieb erreicht bis zu 24,3 kW bei hohem Warmwasserbedarf.
Wie erfolgt die Regelung der Heizung und welche Vorteile bietet die multiMATIC VRC 700?
Die multiMATIC VRC 700 ist eine witterungsgeführte Regelung mit klartextbeleuchtetem DIA-Display und eBUS-Schnittstelle. Sie ermöglicht komfortable Steuerung, einfache Bedienung und Integration in Systemlösungen.
Wie aufwendig ist die Montage und was ist zu beachten?
Die kompakte Bauform der Wandtherme vereinfacht Aufstellung und Anschluss, der Zugang zu Hydraulikkomponenten ist servicefreundlich. Wichtig sind fachgerechte Gas-, Wasser- und Abgasanschlüsse sowie die korrekte Einstellung der multiMATIC durch einen Installateur.
Welche Wartungsmaßnahmen werden empfohlen?
Empfohlen sind jährliche Inspektionen durch einen Fachbetrieb inklusive Kontrolle der Brenner- und Abgasführung, Prüfung von Wasserdruck, Pumpe und Sensorik sowie Reinigung bei Bedarf. Regelmäßige Wartung sichert Effizienz und Lebensdauer.
Gibt es Fördermöglichkeiten bei Austausch älterer Heizsysteme?
Förderprogramme variieren regional; prüfen Sie staatliche und lokale Förderungen für effiziente Brennwerttechnik und Modernisierung. Ihr Heizungsfachbetrieb oder lokale Energieberater können über aktuelle Konditionen und Antragswege informieren.
Vaillant
Wissenswertes und Geschichte über Vaillant:
Vaillant ist auf Klima-, Lüftungs- und Heiztechnik spezialisiert und gehört zur Vaillant Group. Die Vaillant Group ist ein international agierendes Unternehmen. Vaillant ist in ganz Europa tätig. Gegründet wurde die Firma im Jahr 1874, spezialisiert auf Installationshandwerk. Das erste Vaillant Produkt war ein Gasbadeofen, mit dem Kunden sauberes Wasser erhitzen konnten. Das Wasser war nicht verschmutzt und enthielt auch keine Verbrennungsgase. Zu der damaligen Zeit war der Gasbadeofen eine echte Innovation. Zehn Jahre später gab es verschiedene Ausführungen des Gasbadeofens. Besonders beliebte waren die Modelle, die an der Wand befestigt werden konnten. 1924 entwickelte Vaillant den ersten Zentralheizungskessel. Durch den Zentralheizungskessel konnten in einem Gebäude alle Räume beheizt werden. Vorher stand in jedem Raum ein einzelner Ofen. In den folgenden Jahren wurden immer neuere Produkte entwickelt und auf dem Markt eingeführt. Der ''Combi-geyser VCW 20'' wurde im Jahr 1967 entwickelt und kombinierte Warmwasser- und Heizungstechnik in einer Anlage.
Ende der 1990er Jahre gehörte Vaillant zu den Marktführern für Klima-, Lüftungs- und Heiztechnik. Haus- und Wohnungsbesitzer hatten sogar die Möglichkeit, den eigenen Bedarf einzustellen. 1974 wurde das erste Gas-Wandheizgerät entwickelt, das elektronisch betrieben und gesteuert wurde. Neun Jahre später wurden die ersten Edelstahl-Wärmetauscher auf dem Markt eingeführt. Anfang der 2000er Jahre konzentrierte sich Vaillant immer mehr auf Solarthermie und erneuerbare Energien, die einen immer größeren Stellenwert bekamen. Nachhaltige Heizlösungen werden in Zukunft Anlagen mit fossilen Brennstoffen ablösen. Ab 2006 fertigte Vaillant auch Wärmepumpen an.
Sortiment und Produkte:
Vaillant bieten Lüftungsgeräte und Wärmepumpen für Niedrig-Energiehäuser, Photovoltaik- und Solaranlagen für die Warmwasserbereitung und Brennwert-Technologien mit fossilen Brennstoffen an. Das Besondere an der Brennwert-Technologie von Vaillant ist, dass die Abgase aus der Wärmeenergie genutzt werden können. Bei Geräten von anderen Herstellern werden diese Abgase nicht genutzt. Emissionen, Heizkosten und der allgemeine Bedarf an Brennstoffen verringern sich. Zum Produktsortiment gehören auch Hybrid-Systeme, die Sonnenenergie mit Öl- und Gas-Brennwertgeräten kombinieren. Mikro- und Mini-Blockheizkraftwerken sorgen für die Wärme- und Stromversorgung in einem Gebäude. Ab Sommer 2018 werden jedoch keine Mikro-Blockheizkraftwerke angefertigt.
Durch den Klimawandel setzt Vaillant bei der Herstellung immer mehr auf Umweltschutz und Nachhaltigkeit. Der verantwortungsvolle Umgang mit den Ressourcen für die Arbeits-, Produktions- und Entwicklungsprozesse steht an erster Stelle. Die Produktionsprozesse werden immer mehr klimaneutral. Trotzdem entwickelt Vaillant hocheffiziente, zuverlässige und innovative Services, Systeme und Technologien von höchster Qualität. Alle Innovationen sind auf eine nachhaltige Produktion und erneuerbare Energien ausgerichtet. Die Firma ist auch sozial engagiert, um gemeinsam nachhaltig handeln zu können. Kunden, Geschäftspartner und die Mitarbeiter nehmen hier auch eine wichtige Rolle ein und leisten einen wichtigen Beitrag.