3.286,87 €*
% 5.491,85 €* (40.15% gespart)Lieferzeit: 2 - 5 Werktage
Produktinformationen "Vaillant Paket 6.222/2 atmoTEC exclusive VC 104/4-7 A, sensoHome VRT 380f/2, E/H 0010046402"
Vaillant Paket 6.222/2 atmoTEC exclusive VC 104/4-7 A, sensoHome VRT 380f/2, E/H
Einleitung
Das Vaillant Paket 6.222/2 kombiniert das bewährte Gas-Wandheizgerät atmoTEC exclusive VC 104/4-7 A mit dem Funk-Raumtemperaturregler sensoHOME VRT 380f/2 sowie einem praxisgerechten Installations-Set. Dieses Systempaket richtet sich an Anwender, die eine effiziente, bedienungsfreundliche und platzsparende Heizlösung benötigen. Vaillant steht dabei für langlebige Qualität und durchdachte Technik, die Heizkomfort und Energieeinsparung verbindet.
Vorteile und Besonderheiten
- Komplettpaket inklusive Heizgerät, Funkregler und Installations-Set für einfache Inbetriebnahme
- Modulierende Leistungsregelung: präzise Anpassung der Heizleistung von 4,8 bis 10,0 kW
- Hoher Warmwasserkomfort durch 10 kW Speicherladeleistung und Aqua-Power-Plus
- Hocheffizienz-Pumpe und wasserdrucksensor unterstützen den energieeffizienten Betrieb
- Beleuchtetes Klartextdisplay (DIA-System) für komfortable Bedienung und Servicefreundlichkeit
- Flexibles Anschlusskonzept (Kaminanschluss DN 90, waagrechter/senkrechter Einbau möglich)
- Vaillant-Qualität: robuste Verarbeitung und nachvollziehbare Produktdokumentation
Technische Details
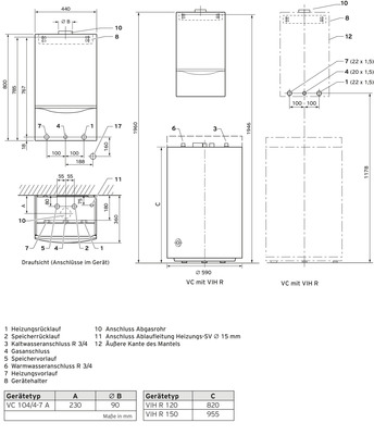
Das atmoTEC exclusive VC 104/4-7 A arbeitet als Gas-Wandheizgerät mit Kaminanschluss und modulierender Leistungsregelung. Der Nennleistungsbereich beträgt bei 80/60 °C 4,8 bis 10,0 kW, die maximale Speicherladeleistung liegt bei 10 kW. Der Normnutzungsgrad wird mit 84 % (Hs) bzw. 93 % (Hi) angegeben; die Pumpe erreicht eine Restförderhöhe von 250 mbar. Anschlüsse: Vor-/Rücklauf G 3/4, Gasanschluss Durchm. 20 mm, Abgasanschluss DN 90. Das Gerät ist 800 mm hoch, 440 mm breit und 360 mm tief bei einem Gewicht von 39 kg. Elektrischer Anschluss 230 V/50 Hz. Zur Ausstattung gehören ein 12 Liter Ausdehnungsgefäß (ADG), SI-Ventil 1/2 Zoll sowie ein wassergekühlter atmosphärischer Vormischbrenner und Vorrang-Umschaltventil mit integriertem Speicheranschluss.
Anwendung und Einsatzbereiche
Das Paket eignet sich für Ein- und Mehrfamilienhäuser sowie für Austauschprojekte, in denen ein platzsparendes Wandgerät mit Heizwerttechnik gewünscht ist. Es ist konzipiert für die Verbindung mit externen Warmwasserspeichern (z. B. uniSTOR-Serien) und ermöglicht durch das sensoHOME-System eine komfortable Funkregelung der Raumtemperatur. Dank des flexiblen Variorahmens und des mitgelieferten Installations-Sets ist die Montage bei Fremdinstallationen oder beim Austausch vorhandener Geräte besonders einfach.
Lieferumfang
Im Paket enthalten sind: 1 x Vaillant atmoTEC exclusive VC 104/4-7 A (Heiztherme), 1 x sensoHOME VRT 380f/2 Funk-Raumtemperaturregler, 1 x VC/VCW/VCI Installations-Set (AP/UP) für Fremdinstallationen sowie das zugehörige Zubehör und Dokumentation (Bestell-Nr. 0010046402). Das Paket enthält alle Komponenten, die für eine fachgerechte Installation und den regelkonformen Betrieb erforderlich sind.
Fazit
Das Vaillant Paket 6.222/2 atmoTEC exclusive VC 104/4-7 A mit sensoHOME VRT 380f/2 bietet eine durchdachte Kombination aus effizienter Heiztechnik, komfortabler Regelung und praxisnahem Installationszubehör. Mit moderner Pumpe, klarem Bedien-Display und der Möglichkeit, externe Speicher anzubinden, ist das Paket eine empfehlenswerte Lösung für Anwender, die Wert auf Qualität, Bedienkomfort und energiesparenden Betrieb legen. Vaillant sorgt hierbei für Verlässlichkeit und Servicefreundlichkeit.
Technische Daten
| atmoTEC exclusive | Einheit | VC 104/4-7 A |
| Heizleistung bei 80/60°C Erdgas E, Erdgas LL (Min - Max) | kW | 4,8 - 10,0 |
| Heizleistung bei 80/60°C Flüssiggas (Min - Max) | kW | 4,8 - 10,0 |
| Heizleistung bei Warmwasserbetrieb Erdgas E, Erdgas LL (Max) | kW | 10,0 |
| Heizleistung bei Warmwasserbetrieb Flüssiggas (Max) | kW | 10,0 |
| Wirkungsgrad bei 30% gem. EN 15502 | % | 89,0 |
| Wirkungsgrad bei Warmwasserbetrieb | % | 90 |
| Elektr. Leistungsaufnahme bei 30% | W | 45 |
| Elektr. Leistungsaufnahme bei Warmwasserbetrieb/Volllast | W | 60 |
| Beinhaltete Bauteile bei elektr. Leistung | - | Pumpe |
| Bereitschaftswärmeverlust bei tK 70°C | % | 3,41 |
| Max. Betriebsdruck heizungsseitig | bar | 3 |
| Anschlusswert bei Erdgas E * ** | m³/h | 1,2 |
| Anschlusswert bei Erdgas LL * ** | m³/h | 1,4 |
| Anschlusswert bei Flüssiggas * ** | kg/h | 0,9 |
| Abgasmassenstrom (Min / Nenn) | g/s | 6 / 8 |
| Abgastemperatur (Min / Max bei 80/60°C) | °C | 85 / 120 |
| Notwendiger Förderdruck | Pa | 1,5 |
| CO2-Gehalt bei Erdgas E (Min / Max) | % | 3,2 / 6,0 |
| Pumpen-Volumenstrom bei 20K (Restförderhöhe) | l/h (mbar) | 430 (250) |
| Ausdehnungsgefäßinhalt | l | 12 |
| Vordruck | bar | 0,75 |
| Spannungsversorgung | V/Hz | 230 / 50 |
| Maße unverpackt (Höhe / Breite / Tiefe) | mm | 800 / 440 / 360 |
| Gewicht Produkt | kg | 39 |
| Anschluss Heizung (VL und RL) | - | G 3/4 |
| Anschluss Gas | - | G 1/2 |
| Anschluss Abgas | mm | Ø 90 |
| CE | - | CE-0085 BS 0340 |
| Kategorie Flüssiggasgerät / Erdgas | - | II2ELL3P / I2ELL |
| * Bei Gas-Wärmeerzeugern dient dieser Wert zur Dimensionierung der Gas-Anschlussleitung (nach TRGI) ** Bezogen auf 15°C und 1013 mbar |
Sicherheitshinweise
WARNUNG: Zur Vermeidung von Körper- und Gesundheitsschäden sind die Montage, Erstinbetriebnahme, Inspektion, Wartung und Instandsetzung von autorisierten Fachkräften (Heizungsfachbetrieb / Vertragsinstallationsunternehmen) vorzunehmen! Gerne vermitteln wir Ihnen einen Fachbetrieb für Installation & Montage von Öl- und Gasheizungen - Fragen Sie uns!
Die Installation von Elektrogeräten mit Drei-Phasen-Wechselstrom-Anschluss (3~/400V), "nicht-steckerfertigen Geräten" ist von einem eingetragenen Fachbetrieb vorzunehmen. Bei Erstinstallation eines Geräts mit einer Nennleistung von mehr als 12kW ist zudem die Zustimmung des Netzbetreibers einzuholen.
Bestimmungsgemäße Verwendung: Bitte beachten Sie bei Installation und Montage beiliegende Installations-, Betriebs- und Wartungsanleitungen sowie Produkt-/Systemzulassungen aller Anlagenkomponenten. Bei Wärmeerzeugern ist zum Beispiel regelmäßig der Fall, dass allein für diese Heizung zugelassene Abgastechnik zur Verwendung gelangen darf. Zur bestimmungsgemäßen Verwendung gehört gleichsam die Einhaltung der ebenfalls in o.g. Unterlagen enthaltenen Inspektions- und Wartungsbedingungen. Bitte kontaktieren Sie unser Fachberater-Team bei offenen Fragen rund um Kompatibilität und Zulassung!
Produktdetails
| Hersteller: | Vaillant |
| Bezeichnung: | Systempaket 6.222/2 mit atmoTEC exclusive VC 104/4-7 A Gas-Wandheizgerät |
| Artikelnummer: | 0010046402 |
| Gasart: | Erdgas E/H (andere Gasvarianten ebenfalls im Shop verfügbar) |
| Nennwärmeleistung bei 80/60°C: | 4,8 - 10,0 kW |
| Warmwasserleistung: | 10,0 kW |
| Abgasanschluss: | DN 90 |
| CE-Kennzeichen: | CE-0085BS0340 |
Hersteller
Vaillant Deutschland GmbH & Co. KG
Berghauser Str. 40
42859 Remscheid
https://www.vaillant.de/heizung/
FAQ: Paket 6.222/2 atmoTEC exclusive VC 104/4-7 A
Wofür eignet sich das Vaillant Paket 6.222/2?
Das Paket ist ideal für Ein- oder Mehrfamilienhäuser sowie für Austauschprojekte, bei denen eine platzsparende Wandheizung mit integrierter Regelung gewünscht wird. Es kann mit externen Warmwasserspeichern kombiniert werden.
Welche Heizleistung bietet das atmoTEC exclusive VC 104/4-7 A?
Die modulierende Nennleistung liegt bei 80/60 °C im Bereich von 4,8 bis 10,0 kW; die Speicherladeleistung beträgt 10 kW. Diese Werte sind in der technischen Dokumentation des Geräts angegeben.
Wie erfolgt die Regelung der Raumtemperatur?
Das Paket enthält den Funk-Raumtemperaturregler sensoHOME VRT 380f/2 für komfortable und flexible Raumregelung. Die Funklösung ermöglicht eine einfache Bedienung ohne direkte Kabelverbindung zum Heizgerät.
Welche Anschlüsse und Einbaumaße sind wichtig für die Montage?
Wesentliche Anschlüsse: Vor-/Rücklauf G 3/4, Gasanschluss Durchm. 20 mm, Abgasanschluss DN 90. Maße des Geräts: Höhe 800 mm, Breite 440 mm, Tiefe 360 mm; Gewicht ca. 39 kg.
Welche Wartung ist für das System notwendig?
Regelmäßige jährliche Wartung durch einen Fachbetrieb wird empfohlen, um Brenner, Wärmetauscher, Pumpe und Sicherheitseinrichtungen zu prüfen. Zusätzlich sollten Druck und Funktion des Ausdehnungsgefäßes kontrolliert werden.
Gibt es Fördermöglichkeiten für den Einbau?
Förderprogramme können regional unterschiedlich sein; empfehlen Sie Kunden, aktuelle Förderprogramme für effiziente Heiztechnik (z. B. Bundes- oder Landesförderungen) zu prüfen. Ein zertifizierter Installateur kann bei der Beantragung und Nachweisführung unterstützen.
Vaillant
Wissenswertes und Geschichte über Vaillant:
Vaillant ist auf Klima-, Lüftungs- und Heiztechnik spezialisiert und gehört zur Vaillant Group. Die Vaillant Group ist ein international agierendes Unternehmen. Vaillant ist in ganz Europa tätig. Gegründet wurde die Firma im Jahr 1874, spezialisiert auf Installationshandwerk. Das erste Vaillant Produkt war ein Gasbadeofen, mit dem Kunden sauberes Wasser erhitzen konnten. Das Wasser war nicht verschmutzt und enthielt auch keine Verbrennungsgase. Zu der damaligen Zeit war der Gasbadeofen eine echte Innovation. Zehn Jahre später gab es verschiedene Ausführungen des Gasbadeofens. Besonders beliebte waren die Modelle, die an der Wand befestigt werden konnten. 1924 entwickelte Vaillant den ersten Zentralheizungskessel. Durch den Zentralheizungskessel konnten in einem Gebäude alle Räume beheizt werden. Vorher stand in jedem Raum ein einzelner Ofen. In den folgenden Jahren wurden immer neuere Produkte entwickelt und auf dem Markt eingeführt. Der ''Combi-geyser VCW 20'' wurde im Jahr 1967 entwickelt und kombinierte Warmwasser- und Heizungstechnik in einer Anlage.
Ende der 1990er Jahre gehörte Vaillant zu den Marktführern für Klima-, Lüftungs- und Heiztechnik. Haus- und Wohnungsbesitzer hatten sogar die Möglichkeit, den eigenen Bedarf einzustellen. 1974 wurde das erste Gas-Wandheizgerät entwickelt, das elektronisch betrieben und gesteuert wurde. Neun Jahre später wurden die ersten Edelstahl-Wärmetauscher auf dem Markt eingeführt. Anfang der 2000er Jahre konzentrierte sich Vaillant immer mehr auf Solarthermie und erneuerbare Energien, die einen immer größeren Stellenwert bekamen. Nachhaltige Heizlösungen werden in Zukunft Anlagen mit fossilen Brennstoffen ablösen. Ab 2006 fertigte Vaillant auch Wärmepumpen an.
Sortiment und Produkte:
Vaillant bieten Lüftungsgeräte und Wärmepumpen für Niedrig-Energiehäuser, Photovoltaik- und Solaranlagen für die Warmwasserbereitung und Brennwert-Technologien mit fossilen Brennstoffen an. Das Besondere an der Brennwert-Technologie von Vaillant ist, dass die Abgase aus der Wärmeenergie genutzt werden können. Bei Geräten von anderen Herstellern werden diese Abgase nicht genutzt. Emissionen, Heizkosten und der allgemeine Bedarf an Brennstoffen verringern sich. Zum Produktsortiment gehören auch Hybrid-Systeme, die Sonnenenergie mit Öl- und Gas-Brennwertgeräten kombinieren. Mikro- und Mini-Blockheizkraftwerken sorgen für die Wärme- und Stromversorgung in einem Gebäude. Ab Sommer 2018 werden jedoch keine Mikro-Blockheizkraftwerke angefertigt.
Durch den Klimawandel setzt Vaillant bei der Herstellung immer mehr auf Umweltschutz und Nachhaltigkeit. Der verantwortungsvolle Umgang mit den Ressourcen für die Arbeits-, Produktions- und Entwicklungsprozesse steht an erster Stelle. Die Produktionsprozesse werden immer mehr klimaneutral. Trotzdem entwickelt Vaillant hocheffiziente, zuverlässige und innovative Services, Systeme und Technologien von höchster Qualität. Alle Innovationen sind auf eine nachhaltige Produktion und erneuerbare Energien ausgerichtet. Die Firma ist auch sozial engagiert, um gemeinsam nachhaltig handeln zu können. Kunden, Geschäftspartner und die Mitarbeiter nehmen hier auch eine wichtige Rolle ein und leisten einen wichtigen Beitrag.